Конечные фланцевые пружины, которые мы запустили, включают в себя различные модели, каждая из которых со своими подразделениями. Все они строго разработаны, производятся и протестированы.
RC2876 и RC2877 представляют собой пан-шишки, а RC2876-B и RC2877-B являются Y-образными комбинированными уплотнениями. Два разных подразделения между каждой моделью имеют одинаковую канавку и могут быть взаимозаменяются. Они подходят для осевых (концевых) и фланцевых статических уплотнений в одностороннем давлении и могут использоваться в местах, где шероховатость поверхности не идеальна. Две панорамы состоит из пружин из нержавеющей стали и высокофункциональных пластмассы. Пружины из нержавеющей стали могут быть выбраны в качестве V-образных пружин и O-образных пружин. А при использовании RC2876-B и RC2877-B необходимо разумно выбрать соответствующие материалы эластомера.
Особенности продукта и приложения:
RC2876
Применимые условия труда (предельные значения не должны появляться одновременно)
| Давление MPA | Скорость м/с | Температура ℃ | Середина | ||
| RC2876 | RC2876-B | - | RC2876 | RC2876-B | Все жидкости, химикаты, газы |
| <40 | <80 | -200 ~+250 | -35 ~+250 | ||
Выбор материала
1. Соответствующие материалы уплотнительного кольца могут быть: r01 нитриловая резина (NBR), R02 Fluororubber (FKM) и т. Д.
2. Материалы запечатывания кольца: PTFE1, PTFE2, PTFE3, PTFE4, UPE, PK1, PK2 и т. Д.
3. пружины из нержавеющей стали могут быть выбраны из O-образных пружин и V-образных пружин.
Пример заказа
RC2876-40-PTFE4+V Внешний диаметр канавки внутреннего давления составляет 40, материал для герметичного кольца составляет PTFE4, а пружина-V-образная пружина
RC2876-B-40-PTFE4+R02 Внешний диаметр канавки внутреннего давления составляет 40, материал для герметичного кольца составляет PTFE4, а соответствующее уплотнительное кольцо-флоруруббер
Примечание. Если вы выберете расширенный диапазон, используйте номер серии.
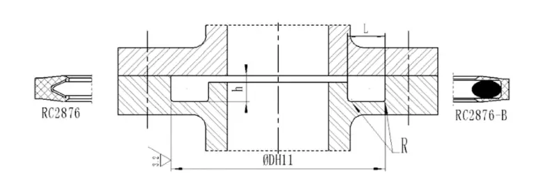
| Серийный номер | Серийный номер | Стандартный диапазон DH11 | Расширенный диапазон DH11 | Глубина канавки час-0.05 | Ширина канавки Л+0.2 | Круглые углы Rmax |
| RC2876-0 | RC2876-B-0 | 10 ~ 13,9 | 10 ~ 40 | 1.45 | 2.4 | 0.4 |
| RC2876-1 | RC2876-B-1 | 14 ~ 24,9 | 13 ~ 200 | 2.25 | 3.6 | 0.4 |
| RC2876-2 | RC2876-B-2 | 25 ~ 45,9 | 18 ~ 400 | 3.1 | 4.8 | 0.6 |
| RC2876-3 | RC2876-B-3 | 46 ~ 124,9 | 28 ~ 700 | 4.7 | 7.1 | 0.8 |
| RC2876-4 | RC2876-B-4 | 125 ~ 999,9 | 45 ~ 1000 | 6.1 | 9.5 | 0.8 |
| RC2876-5 | RC2876-B-5 | ≥1000 | ≥110 | 9.5 | 15.0 | 0.8 |
RC2877
Применимые условия труда (предельные значения не должны появляться одновременно)
| Давление MPA | Скорость м/с | Температура ℃ | Середина | ||
| RC2877 | RC2877-B | - | RC2877 | RC2877-B | Все жидкости, химикаты, газы |
| <40 | <80 | -200 ~+250 | -35 ~+250 | ||
1. Соответствующие материалы уплотнительного кольца могут быть: r01 нитриловая резина (NBR), R02 Fluororubber (FKM) и т. Д.
2. Материалы запечатывания кольца: PTFE1, PTFE2, PTFE3, PTFE4, UPE, PK1, PK2 и т. Д.
3. пружины из нержавеющей стали могут быть выбраны из O-образных пружин и V-образных пружин.
Пример заказа
RC2877-40-PTFE4+V Внутренний диаметр канавки внешнего давления составляет 40, материал для герметичного кольца составляет PTFE4, а пружина из нержавеющей стали-V-образная пружина
RC2877-B-40-PTFE4+R02 Внутренний диаметр канавки на внешнем давлении составляет 40, материал для герметичного кольца составляет PTFE4, а соответствующее уплотнительное кольцо-флоруруббер
Примечание. Если вы выберете расширенный диапазон, используйте номер серии.
| Серийный номер | Серийный номер | Стандартный диапазон D H11 | Расширенный диапазон DH11 | Глубина канавки час-0.05 | Ширина канавки Л+0.2 | Круглые углы Rmax |
| RC2877-0 | RC2877-B-0 | 3 ~ 9,9 | 3 ~ 40 | 1.45 | 2.4 | 0.4 |
| RC2877-1 | RC2877-B-1 | 10 ~ 19,9 | 8 ~ 200 | 2.25 | 3.6 | 0.4 |
| RC2877-2 | RC2877-B-2 | 20 ~ 39,9 | 12 ~ 400 | 3.1 | 4.8 | 0.6 |
| RC2877-3 | RC2877-B-3 | 40 ~ 119,9 | 20 ~ 700 | 4.7 | 7.1 | 0.8 |
| RC2877-4 | RC2877-B-4 | 120 ~ 999,9 | 35 ~ 1000 | 6.1 | 9.5 | 0.8 |
| RC2877-5 | RC2877-B-5 | ≥1000 | ≥110 | 9.5 | 15.0 | 0.8 |











Адрес
№ 1 Ruichen Road, промышленный парк Дунлютин, район Чэнъян, город Циндао, провинция Шаньдун, Китай
Тел.
Электронная почта